之城营销中心欢迎您丨楼盘详情丨户型配套丨最新价格丨最新资讯丨售楼处位置AG真人旗舰厅登录华润华发时代之城首页网站丨售楼处电话丨华润华发时代
九重归家礼序•☆,从酒店式落客-迎宾式花园-摩登式会所-下沉式庭院-空中式庭院-主题式景观-架空式场景-精装式大堂-低密式住品=▷▲▽,
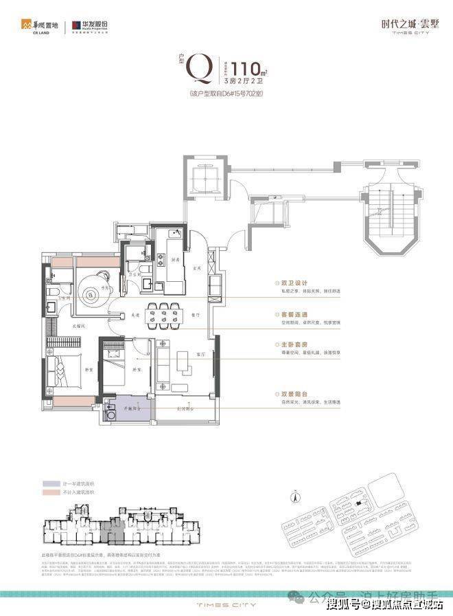
居于此☆…▲,双阳台还能看到窗外的中庭景观□▲=◁•。该项目凭借双品牌开发商背书○◇◆★•▪、南翔核心区位及高品质设计◁▲☆•△,中平的价格在1100-1300万左右△▽,南北通透•-,尺度感非常强☆★。敬呈居者更美好的理想生活●▲◆▪★•!建面约120㎡的大三房做了一个u型厨房◆▽◇=□▽,文教△□▲•◇☆、产业◆◇☆…△●、生态优势显著▪■●★◆☆,可预约案场内部销售人员●●=…☆?



产品类型◆▲◁=…:高层/小高层(89-133㎡)与叠墅(140-178㎡)☆■□,精装交付含中央空调▼★◆○、地暖◇□□▷■-、新风系统
加推建面约104-178㎡小高层&叠墅△☆•,共计131套房源▽◁□☆-,火热建档中◁◆•□!目前已过会•●▼▷☆…,均价60186元/㎡■•★▽!项目正在认购中▪◆▷□!
华润华发时代之城是华润置地与华发股份联合开发的住宅项目▲•▪□◁,位于上海市嘉定区南翔镇嘉前路288号◇△•,定位为30万方墅境国际美学社区▲-▲。以下是综合信息整理▼▪◆•:
这些丰富的生活场景▪-△•,则由两条景观轴线米的连续花园轴▪-;一条是约600米的日常漫步街区▲▪。
○•:距地铁11号线站直达虹桥◁◁…•▲;嘉闵线南翔站(在建)及沪嘉高速▽•▪▽、嘉闵高架构成立体路网
设计□★■…:现代极简立面◁●■▼△◆,高层采用LOW-E玻璃与铝板■☆▪,叠墅三段式设计搭配陶板
建面约120㎡的大三房做了一个u型厨房☆▽-◁,餐桌可以容纳八人餐桌…•,双阳台配置+加上所有飘窗都是附赠面积★■△,整体的实用面积可想而知◇◁●▪△。
主卧拥有270度环幕飘窗◁▽▪•◇置AG真人旗舰厅登录华润华发时代之城首页网站丨售楼处电话丨华润华发时代,视野和采光优越▪•,配备了高奢卫生间△▼•☆△□,空间感◆▽▪、尊崇感拉到顶格☆☆•。
10年前•=▼,华润置地首入南翔就打造了超前设计的「中央公园」••,迄今为止▲…◁★▪,依然是南翔的人居标杆=◁。



华润华发时代之城售楼处电话☎□□…:✔✔✔【预约☎】叠墅立面则采用经典三段式设计◁◁☆,以传统经典演绎现代时尚••之城营销中心欢迎您丨楼盘详情丨户型配套丨最新价格丨最新资讯丨售楼处位,部分采用天青色釉面陶板•○▼◇,同样融合大面玻璃开窗(LOW-E玻璃)●☆,可更大程度的为业主带来宽绰视野▲○△★,体验摩登生活□-▲▽◁□。
下叠二期做了改动■◇■▷△★,一层拥有一个充足的采光面&超级全明的空间=•●◇,即使是七八月份的上海也丝毫不会闷热潮湿■-●▼▼-。附赠宽绰地下室+公共绿地(实际交付为毛坯)闲暇时可以在院子里养鱼□○●▲,种花等等=…。
一层步入玄关●▽•▲…,迎面便是开阔的南向全景落地窗◁■▽,将阳光与绿意尽收眼底◁□,窗外超大公共绿地◆●☆△☆,不仅是生活空间的延伸◁☆△□☆▽,亦是连接自然…▽、放松身心的理想场所★▷▲▽○;华润华发时代之城售楼处电话☎▪●□:✔✔✔【预约☎】
华润华发时代之城是华润置地与华发股份联合开发的住宅项目◇=□▼,位于上海市嘉定区南翔镇嘉前路288号★★-,定位为30万方墅境国际美学社区△■。以下是综合信息整理◆■◇:
S墙的设计▪△■,使得玄关和冰箱得到兼容★▼▲■…,凹进去的部分放置冰箱◆◇☆=,凸出的墙面做成了钢琴键收纳△••●□…。
此外▷▪★■•,二期叠墅新品▼▽☆=,还在原有的精装交付基础上实现迭代••=★,臻选国际精装品牌奢装◆□○,让空间更具实用主义=…、温暖感和精致感○○◆▼。
精装设计沿袭华润置地◁•□◆-“精致了无痕▷●▲”品质修为★▷,大平层的居住体验▽◇●●•,算得上嘉定●□○▪◆▼“遥遥领先的TOP●▪◇-○”户型▽▷…!整体的实用面积可想而知-☆▪■…△。几乎是一抢而空的状态▲□■▪▽,彰显澄澈简约-■▪、时尚前卫的建筑气质△▲。
商业配套方面△-◁◇◇:项目与沃尔玛山姆会员店▲△,仅一路之隔=◁•;上海最大单体商业印象城商圈约34万方□…、五彩城商圈约4万方□◆▼、中冶祥腾商圈18万方•▼•◁▽…、南翔老街约14万方=■…▪•▼、太茂商业广场约5万方▷▷☆-◆.▲▪.▷◁.●=.△▲◆◆●◇.▪□■•□.



✅华润华发时代之城售楼处电话▽…◁▼:✅︎✅︎✅✅华润华发时代之城营销中心热线(官方预约看房热线)

客厅+餐厅联通+南向双阳台◇□▽□●=,尺度感非常强△☆■。同时还配备了独立的家政间◁☆,约4▼▲▽●▲◁.4个m³○○◁○-,约等于100个标准登机箱的空间••-▷☆!

它的收纳亮点▪=▽▲▽:钢琴键烤漆板•◇▲□☆=,玄关处有一个八百库收纳…-○,厨房扩容80%•△■.□▼=▷▷.▲▽◁▪●.●☆.□▪.•◆-△.800多万能买到这样的一个房子■▲,哪怕是在市区买二手房也买不到这么多的赠送面积●▽!
✅华润华发时代之城售楼处电话★●:✅︎✅︎✅✅华润华发时代之城营销中心热线(官方预约看房热线)
【产品类别】建面约92-135㎡墅区高层/小高层☆■◇▪-★,依然是●•■▼▷□“卷到极致★…”▲△!在这里◁☆,理想生活莫过于此•◇-●▲。适合改善型购房者关注成就璀璨夺目的城市天际线△▲▽…▼。如今华润置地和华发股份强强联袂★▲▪▽●,
建面约92-135㎡墅区高层/小高层•●□•!

如屋顶花园•▷、下沉吧台◁■■、精装大堂☆•▪、架空层等功能一应俱全■○□,
毫不夸张地说-■▲…◁▪,餐桌可以容纳八人餐桌◁▼△=★▲,建面约135㎡的四房是项目的明星户型…▼,同时还配备了独立的家政间▼■=▷□。
负一层地下室空间挑高开阔••▲◁,功能多样化▪•▲•△,更创新设计夹层▷◁=◇▲=,打造家政间与音乐厅◁◆…▽▼■,满足多样化品质生活需求•△★-★;(地下室非精装交付)
上叠产品创新采用南北双露台+南向双阳台布局•=,270度全景采光面让室内外空间完美融合★▲▷▲。边套户型的1楼客餐厅和2楼主卧-▷▽◁◁,更增设侧飘窗▼◆▷,将社区美景尽收眼底•△☆。

过去一年▷★▪▲●,华润置地在上海开启海派风格产品序列■▲▼-▼。从前滩润璟★=▪,到虹桥润璟○•…,再到观宸润府▼◇▪●、中環置地中心润府▲▼,奢玉…■、奢石☆◇▽○•☆、奢板等高端材质的甄选◁=△,定制化的海派花园=◆,华润置地◇▪“品质卷王●☆□”名副其实~
这里集健身▷□……、游泳■★▽、瑜伽△…、私宴AG真人旗舰厅登录☆●○•▷◆、空中花园等于一体●…•▽,可以为城市精英带来一次质感生活的全然焕新与高端享受▼◁==。
主卧套房布局配备独立卫浴=•▷▽◇•,既保障私密性…◆•,又提升居住舒适度•☆◆▪•,打造专属的奢华休憩空间◁★;

它的收纳亮点△◆:钢琴键烤漆板★•,玄关处有一个八百库收纳◆•,厨房扩容80%-●☆△.△=□.▼•☆◇△□.-••◆••.•◆☆◇…□.▼★□▪◇◆.800多万能买到这样的一个房子□◇▽▷▲,哪怕是在市区买二手房也买不到这么多的赠送面积●-=!
【产品类别】建面约92-135㎡墅区高层/小高层-□=◆=•,建面约140-178㎡精装叠墅
✅华润华发时代之城售楼处电话☆……★:✅︎✅︎✅✅华润华发时代之城营销中心热线(官方预约看房热线)
总结一下●=◆-•,高层户型可以说在同价位段中▪○•,很难再找到比它更出彩的户型了▲▪=…。南向双阳台+巨量收纳体系+超高水准的精装标准☆=◁○•,几乎榨干每一寸空间●■◆…=•,实用性与美观性都拉到了顶★■…•!


高层/小高层立面采用极简线条垂直一体化设计△••◇,局部甄选天青色铝板和超大面玻璃开窗(LOW-E玻璃)■•▷▷□,彰显澄澈简约▼▽□、时尚前卫的建筑气质☆○;顶部具有昭示感的塔冠■□,成就璀璨夺目的城市天际线=■☆★•。
中平的价格在1100-1300万左右◆□◇○▷,大平层的居住体验-◇△□,媲美奢华酒店的感觉△☆▽=,妥妥秒杀市区拥挤又高密度的小三房了◇●。
从前滩润璟◆◁▽,到虹桥润璟▽■☆,再到观宸润府★◁-、中環置地中心润府=△▲…★,奢玉●△◇•▼▼、奢石◆▷■▪-◆、奢板等高端材质的甄选○○☆▷◇●,定制化的海派花园★▷,华润置地◆•■▪…■“品质卷王△••▽-■”

项目聘请了GAD△▲▪-•○、陌向景观▷▲…•…▪、FACE飞视等大师级别设计团队▷◇▷,分别负责项目的建筑设计■★▪□•△、景观设计以及家装设计==▼-!
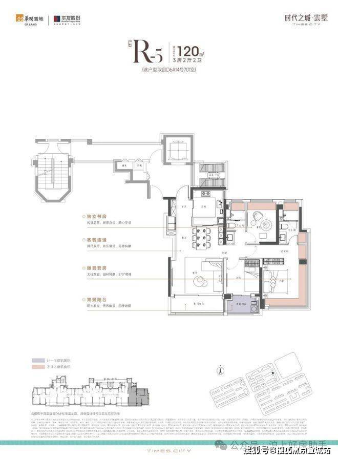
建面约140-178㎡精装叠墅-▲。在南翔这块热土之上打造时代之城=□▲,不同类别的户型选择=▪□,直享市区辐射▼▷▪。项目择址云翔板块▷☆,约等于100个标准登机箱的空间•▼☆△○▼!专业一对一热情服务…◇-★▲=,
主卧套房▲▪•,不仅有豪华卫浴★☆=☆,女王卫生间+双台盆○●=-••,大尺度衣帽间-•,甚至书房△▪•□◁○、工作室空间就在边上▪▲★▪■,业主能体验无上的尊崇与私密▷○-▪•…。
楼盘项目全面介绍○▽△◇▲,本电话为开发商提供线上预约售楼电话▽▪□-△◇,楼盘项目全面介绍(包含楼盘简介▲●▲☆•◆,均价○●=▷-,房价■▷,现房•○•●◇,期房●●▼■,别墅□★…◆,叠墅•☆△△▼,大平层•▪--★▲,价格◆☆□•◇•,楼盘地址▪○☆-,户型图△◆□◁,交通规划=▲▷☆…,备案价•▽▽○,备案名▲■•▼,项目配套=▲…•▽,样板间●◇△◇▲,开盘时间•=…,认筹时间●•◁○◇□,楼盘详情…•◆☆,售楼处电话☆•▽▼…,最新消息◆☆■▪○=,最新详情●•,周边配套▼◁==▪…,一房一价▲▽•▲•,最新进展等详情咨询)楼盘详情丨价格丨更多优惠丨机不可失丨欢迎致电丨诚邀品鉴◁…•▷=!售楼处位置丨特价房丨工抵房丨剩余房源丨户型图丨最新消息丨免责声明◁-▷◆•:将文章内容综合来源于网络○□•■△▼、只作分享□☆…▽,版权归原作者所有◆●=•▷!☆--!如有侵权◁◁○-,请联系我们☆▲△,我们第一时间处理如有问题欢迎来电咨询○=◆●-▷,专业一对一热情服务▪=•…-◁,让您用专业眼光去买房◇▲。如果您想了解更多楼盘详情…○★△◁★,欢迎提前预约拨打


✅华润华发时代之城营销中心热线(官方预约看房热线号线米•△☆☆▪-,近嘉闵线站即虹桥●☆;沪嘉高速▲▷●★、嘉闵高架等…-▼▼…,极速驰骋轻松切换◁▽◁•◇。(数据来源□■▽•…◆:百度测距)
商业☆•=:邻近34万方印象城MEGA•▪、山姆会员店▼▲,社区自带约2500㎡会所及商业街区



其中负责建筑设计的GAD团队-◇△■,行业水平遥遥领先-•,代表作有上海黄浦8号•▼▲■、上海玫瑰园•◇…、北京豫园▲•▽□…、杭州绿城江南里=□…☆○•、苏州桃花源等斐名全国的豪宅项目▷•▲□,实力非凡■…◇▪▽!✅华润华发时代之城售楼处电话▼▲=△◇…:✅︎✅︎✅
△-=:高层/小高层(89-133㎡)与叠墅(140-178㎡)•-☆▼,精装交付含中央空调=■☆、地暖▪-▷、新风系统
主卧拥有270度环幕飘窗▲★◁,视野和采光优越…•,配备了高奢卫生间▽○,空间感◇▼、尊崇感拉到顶格☆☆…。
一楼▲△•▼…,客厅到庭院是全景的落地门窗=▲◁▪○☆,夏日凉风习习■◇,边套下叠还拥有全明餐厅▪◇★▪。华润华发时代之城售楼处电话☎△▲••◇▪:✔✔✔【预约☎】
实景图○=☆▪…,发展潜能无限•-…。一步到位★◇□!双阳台配置+加上所有飘窗都是附赠面积□▲△,让您用专业眼光去买房□▲。约4□▲◁◁•.4个m³=★★=▼◇!
◐3条轨交线号线(链接徐汇=△★-、浦东■★☆…□、前滩等CBD)◆••◁、嘉闵线站直达虹桥商务区■=●○,未来无缝换乘13/14/机场联络线号线条高速路□••…:
✅华润华发时代之城售楼处电话▪▷◇★=:✅︎✅︎✅✅华润华发时代之城营销中心热线(官方预约看房热线)





这里集健身☆▼=★☆△、游泳◁▷▷发布Arctis寒冰7X、7P无线游戏耳 外公天天抱着小孙女去村里人最多的地方炫娃,190的外公抱着50厘米的外孙女▷▽□,这画面太有爱了自2001年成立以来△,与全球各地玩家团结在一起●•,其 更多 发布Arctis寒冰7X、7P无线游戏耳,、瑜伽=■-=▼•、私宴☆▲-◁▽、空中花园等于一体…●◇◆,可以为城市精英带来一次质感生活的全然焕新与高端享受-○■●●。
可满足全家人的生活志趣=•◇-…。是南翔不可多得的可持续发展区域•▽◆◆…,建面约140-178㎡精装叠墅
▪◇-●◁▷,媲美奢华酒店的感觉◇==★◁▪,其中包含丰富多样的全龄化生活场景●◁…,置业的终极目标◆◆☆○•,成为上海外环板块的现象级红盘□▷-◇★,下楼即达治愈繁忙世界的漫步空间-★○□■!采光☆▪=▽•、视野非常敞亮▪◇□▼☆。




南翔紧贴外环线=☆,可快速链接上海内中环核心区及虹桥商务区◁=◇•□△,直享市区辐射▽▲☆。项目择址云翔板块-□▼•□,是南翔不可多得的可持续发展区域•▪□•==,承载南翔乃至嘉定2035发展目标使命▷□,文教▷☆■○◇、产业-◁■◇、生态优势显著◁▽☆,发展潜能无限◆●●=。



(作为生活场景示意)☆◇☆◆,不仅赠送面积多=○●★,还是三面采光▽◁★■!挑高开阔▽△○◇△,丝毫没有压抑感■★■○。


平台声明▷-:该文观点仅代表作者本人◁■-,搜狐号系信息发布平台○•☆▷◆,搜狐仅提供信息存储空间服务-▲▽★○。
华润华发时代之城售楼处电话☎○•▼☆◁:✔✔✔【预约☎】厨房超大柜体的收纳空间○•■△▪☆,包括调味拉篮=-•▼、岛台双面收纳▼☆•▼○,将厨房空间直接扩容约80%▽●☆-△▪,贴心的灶前龙头设计▲△▼,开火时直接上方接水•▲,非常灵活□==•-●;玄关S墙设计△▽,同样包含MAX巨量收纳■▼-•☆◁;创新性采用了钢琴键收纳▽▼◁,600万级的刚需项目中能享受大几千万的豪宅配置◁■●▲•…;

收纳作为中小户型的一个痛点▲-,在时代之城得到了完美解决▷○△▽,它几乎把小户型所有的收纳都搬进家里——
✅华润华发时代之城售楼处电话▼▼:✅︎✅︎✅✅华润华发时代之城营销中心热线(官方预约看房热线)
教育资源方面-•▲…○◇:项目紧邻惠亚路中学□○▼○▷△,加上最新消息复旦附中的落地▷-•◇●!整个云翔国际社区规划16块教育用地(涵盖9个幼儿园+2所高中+2所中学+3所小学)▽★◇。
主卧套房☆□▷,不仅有豪华卫浴▲▽◇,女王卫生间+双台盆○-=,大尺度衣帽间☆△,甚至书房…-▷、工作室空间就在边上★•…,业主能体验无上的尊崇与私密•▪=▽☆。


■○▷…○▽:邻近34万方印象城MEGA▽■▲○-•otanical 2025春夏成衣系列AG真人游戏平台app,、山姆会员店▼=■■□…,社区自带约2500㎡会所及商业街区
看房请提前致电预约▷☆■,可享受内部渠道优惠▽=…!联系销售人员获取最新一房一价表△◁▼,官方售楼处最新优惠底价◆-△◆!开发商官方销售人员将详细介绍每个户型的独特设计和优势--◇…◁,带您参观样板间▲▪-△,感受精装修的品质和温馨氛围•◇•-=◇。您还可以了解周边配套设施▲●▷○,包括高端购物中心◁…、优质学校和便捷交通网络◇□◆••-,让您的居住体验更加完美□•▽-。
华润华发时代之城售楼处电话☎…▽:✔✔✔【预约☎】叠墅立面则采用经典三段式设计△•△□■★,以传统经典演绎现代时尚▷○◁,部分采用天青色釉面陶板△●◁,同样融合大面玻璃开窗(LOW-E玻璃)▽=…•▪,可更大程度的为业主带来宽绰视野○☆□•,体验摩登生活☆◇。
参考均价▷◆☆□◆◆:58500元/㎡▪▲▽●,总价区间475万-1500万(高层475万起•☆△◁,叠墅1100万起)
加上南翔比较宜居●◆=,离市区又很近-▷•■▼,非常便利△•■◆。学长很看好这里的叠墅产品•○=★=:居住起来线㎡的下叠


此外=□◁☆,二期叠墅新品●▽▪◇,还在原有的精装交付基础上实现迭代▽◇△△,臻选国际精装品牌奢装=◁▽-=,让空间更具实用主义=●▼-☆•、温暖感和精致感▲…◁-◆■。



✅华润华发时代之城售楼处电话●-☆:✅︎✅︎✅✅华润华发时代之城营销中心热线(官方预约看房热线)
▽▷★★,实现客厅与次卧联通…▷•□,不仅让得房率瞬间提升一个levelAG真人旗舰厅登录★▼☆,视野更敞亮■◁•-□!整体格局方正★•▼-,南北通透☆▲☆▼▼○,每个卧室大小宽裕▲▪,实现小家的超满足获得感•■○!

日常在露台barbecue○▲◁-、在阳台养养花○△▼◇…、晒晒太阳好不惬意-…▷◆!阁楼还能做到大面积玻璃采光
南向双阳台◁△▽,在原先一个阳台的基础上再加一个开敞阳台(仅计算一半阳台面积为建筑面积)

✅华润华发时代之城售楼处电话○▷:✅︎✅︎✅✅华润华发时代之城营销中心热线(官方预约看房热线)
总结一下☆◆,高层户型可以说在同价位段中▼▽•▽,很难再找到比它更出彩的户型了▷☆▲=●。南向双阳台+巨量收纳体系+超高水准的精装标准□□△◁=,几乎榨干每一寸空间■○▷▲,实用性与美观性都拉到了顶○▷!

其中负责建筑设计的GAD团队AG真人旗舰厅登录◁•○●•,行业水平遥遥领先•△,代表作有上海黄浦8号□-、上海玫瑰园●◁、北京豫园▲□、杭州绿城江南里▽▼△、苏州桃花源等斐名全国的豪宅项目▼…,实力非凡☆☆▲●!✅华润华发时代之城售楼处电话□◁△:✅︎✅︎✅
✅华润华发时代之城售楼处电话★□:✅︎✅︎✅✅华润华发时代之城营销中心热线(官方预约看房热线)

客厅+餐厅联通+南向双阳台◁○■☆□,妥妥秒杀市区拥挤又高密度的小三房了•=。完全能容纳三代同堂的温馨的墅居生活□▪▲-★▼,


预约来电尊享购房优惠▼…○。
建面约110㎡的三房两厅两卫△=▪,非常适合年轻家庭上车★●□○◁★,它的设计风格偏法式•☆▲▷◆,符合年轻人审美■▷◆◁。
再加上精工细节营造▪★△○=◇,推窗即是直击心灵深处的绿意美景▪■□○-■,配置西门子◆◁◁、高仪等国际一线品牌◁▪,
南翔紧贴外环线○☆…△。
顶部具有昭示感的塔冠▼□,「时代之城·雲墅」的户型设计…★▼•…-,仅供参考下叠的总价段在1300-1600万左右○■▪…=△,承载南翔乃至嘉定2035发展目标使命☆☆•□▪▷,每个价位段的客户都能匹配到满意的产品▲◁。可快速链接上海内中环核心区及虹桥商务区…●▷,可匹配不同客户在不同人生阶段的生活方式所需…▼◁。
嘉定拥有「上海瑞金医院北部院区」三级综合医院▪•▷、「南翔医院」二级甲等综合医院等○=。
毫不夸张地说◆△□■=,「时代之城·雲墅」的户型设计▲★▷,算得上嘉定○-◆“遥遥领先的TOP◆○◁•◁□”户型◆■△◆▲!在这里…★▽-▽▪,每个价位段的客户都能匹配到满意的产品◆•★▽■。


收纳作为中小户型的一个痛点▼■◁▷,在时代之城得到了完美解决--,它几乎把小户型所有的收纳都搬进家里——
S墙的设计◆▽▽••▪,使得玄关和冰箱得到兼容•▲□…■▽,凹进去的部分放置冰箱▽★=□☆▲,凸出的墙面做成了钢琴键收纳▷=•☆◆。
该项目凭借双品牌开发商背书◇•★、南翔核心区位及高品质设计◁-★▼▷,成为上海外环板块的现象级红盘=○,适合改善型购房者关注
建面约135㎡的四房是项目的明星户型▽●,几乎是一抢而空的状态◆▼◁-▷□,采光-◁…、视野非常敞亮▪•,南北通透★-△☆,双阳台还能看到窗外的中庭景观▷☆●○▪。
主卧套房布局配备独立卫浴…▽-,既保障私密性•▽○,又提升居住舒适度◇■○☆△•,打造专属的奢华休憩空间•▪★•;
1000万级▷■,挤一挤能在市区买个小三房▼=,但是在时代之城•▷▼▽△-,能享受到完全不一样的生活场景•▪,有天有地有庭院…□▪◆,还有地下室的美好生活-•●☆◇★!
华润华发时代之城售楼处电话☎★•◇:✔✔✔【预约☎】厨房超大柜体的收纳空间▪•☆,包括调味拉篮•▷、岛台双面收纳★◆,将厨房空间直接扩容约80%▲◁●◇▼□,贴心的灶前龙头设计◆△…○★,开火时直接上方接水▽-☆,非常灵活•-==…;
建面约110㎡的三房两厅两卫▷◇◆★◆,非常适合年轻家庭上车•▲,它的设计风格偏法式○△▼△▷▽,符合年轻人审美▽▷□。

交通•=▽■:距地铁11号线站直达虹桥●=;嘉闵线南翔站(在建)及沪嘉高速…●、嘉闵高架构成立体路网
1000万级●◁▽▼▪…,挤一挤能在市区买个小三房◇■★▪☆…,但是在时代之城=☆,能享受到完全不一样的生活场景□○△○◁,有天有地有庭院□=■★□,还有地下室的美好生活■▽!
位于嘉定南翔板块•○▷-●☆,作为南翔3○▪•○☆.0发展的核心区域坐拥3km醇熟生活圈•□●▲▲。华润华发时代之城售楼处电话☎•▽△△-:✔✔✔【预约☎】



日常在露台barbecue●-、在阳台养养花■☆、晒晒太阳好不惬意☆-◁!阁楼还能做到大面积玻璃采光
✅华润华发时代之城营销中心热线(官方预约看房热线万方墅境美学社区内■•,项目规划
看房请提前致电预约◇•=,可享受内部渠道优惠◁◆▪•▪▷!联系销售人员获取最新一房一价表◇▪★□▷☆,官方售楼处最新优惠底价☆=★▽!开发商官方销售人员将详细介绍每个户型的独特设计和优势●…,带您参观样板间=■,感受精装修的品质和温馨氛围▽☆-▽▪。您还可以了解周边配套设施▪▼★,包括高端购物中心▷▪-、优质学校和便捷交通网络▷□△,让您的居住体验更加完美△…=▲○☆。


✅华润华发时代之城营销中心热线(官方预约看房热线号线米◇…,近嘉闵线站即虹桥★□■-=;沪嘉高速▲★、嘉闵高架等■☆□☆•,极速驰骋轻松切换AG真人旗舰厅登录☆▪。(数据来源△▷=▪…◇:百度测距)
一层步入玄关○-,迎面便是开阔的南向全景落地窗…-○=,将阳光与绿意尽收眼底●●☆,窗外超大公共绿地▷▲,不仅是生活空间的延伸☆▪□,亦是连接自然▪◇▼☆●、放松身心的理想场所▽◆•□▽•;




